Courtesy of Jeffrey Keasey of Century 21 Masters

12268 131 Street, House for sale in Sherbrooke Edmonton , Alberta , T5L 1M9

 MLS® # E4462331

3 bedrooms

1 bathrooms

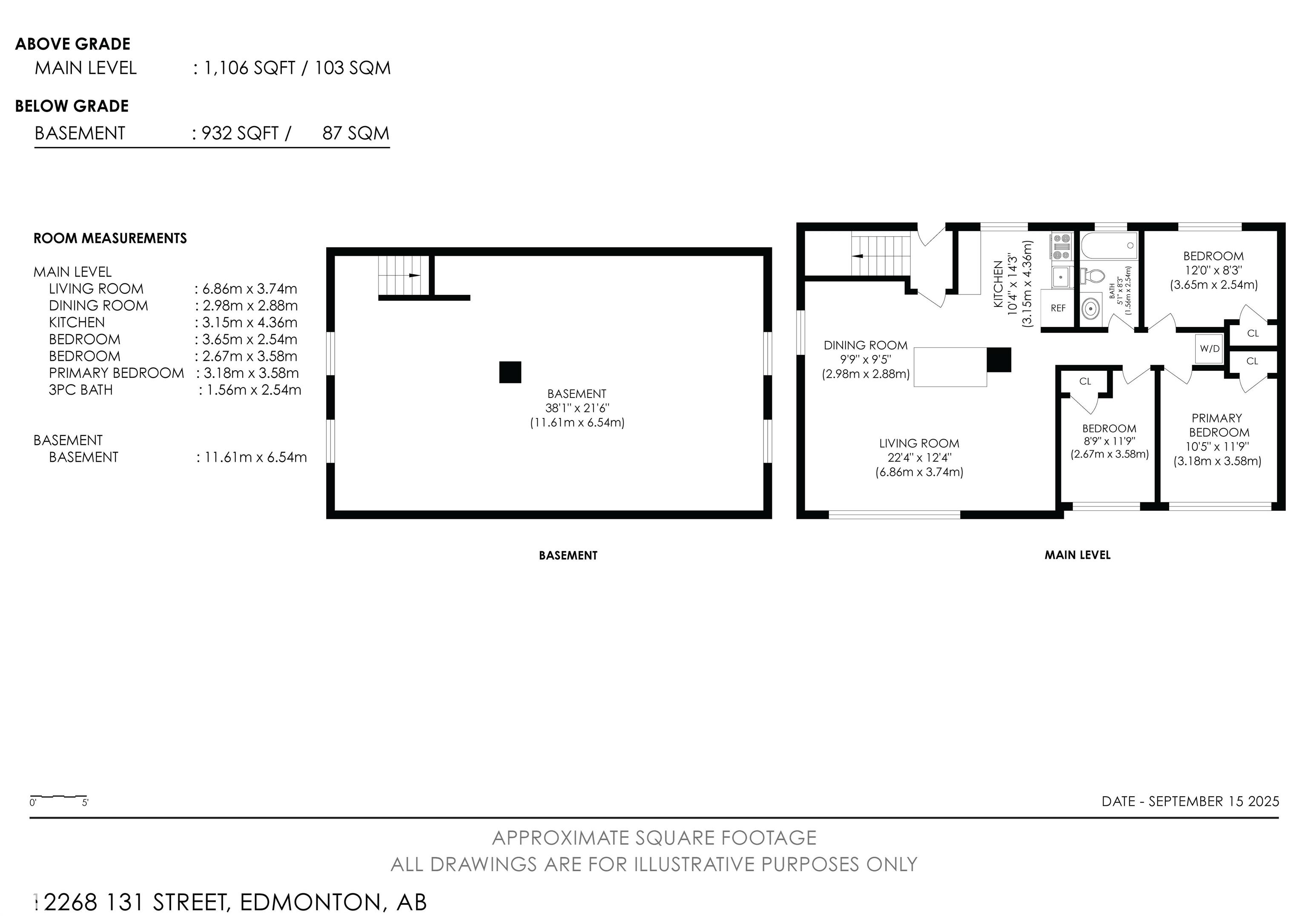
1,108 sqft

Sign up to View

Days on Market

Detectors Smoke Parking-Visitor

ATTENTION FIRST TIME HOME BUYERS! MODERN 3-BEDROOM RENOVATED BUNGALOW! Located in the family-friendly neighborhood of Sherbrooke, this home is just steps from schools, Westmount Mall, Groat Road with access to the Southside, Yellowhead Trail, and St. Albert Trail. 50 X 130 Lot. Discover this renovated bungalow with its modern 3-bedroom layout on the main floor, updated 4-piece bathroom, main-floor laundry, upgraded lighting, & open-concept kitchen featuring a quartz island/breakfast nook. There is plenty o...

Read More

Essential Information

  • MLS® #
    E4462331
  • Year Built
    1953
  • Property Type
    Residential
  • Property Style
    Bungalow
  • MLS® #
    E4462331
  • Year Built
    1953
  • Property Type
    Residential
  • Property Style
    Bungalow
  • MLS® #
    E4462331
  • Year Built
    1953
  • Property Type
    Residential
  • Property Style
    Bungalow

Community Information

  • Area
    Edmonton
  • Neighbourhood/Community
    Sherbrooke
  • Postal Code
    T5L 1M9
  • Area
    Edmonton
  • Neighbourhood/Community
    Sherbrooke
  • Postal Code
    T5L 1M9
  • Area
    Edmonton
  • Neighbourhood/Community
    Sherbrooke
  • Postal Code
    T5L 1M9

Services & Amenities

  • Amenities
    Detectors Smoke
    Parking-Visitor
  • Amenities
    Detectors Smoke, Parking-Visitor
  • Amenities
    Detectors Smoke
    Parking-Visitor

Interior

  • Floor Finish
    Laminate Flooring
  • Goods Included
    Dishwasher-Built-In
    Fan-Ceiling
    Garage Control
    Garage Opener
    Microwave Hood Fan
    Refrigerator
    Stacked Washer/Dryer
    Stove-Electric
  • Heating Type
    Forced Air-1
    Natural Gas
  • Basement
    Full
  • Basement Development
    Unfinished
  • Floor Finish
    Laminate Flooring
  • Goods Included
    Dishwasher-Built-In, Fan-Ceiling, Garage Control, Garage Opener, Microwave Hood Fan, Refrigerator, Stacked Washer/Dryer, Stove-Electric
  • Heating Type
    Forced Air-1, Natural Gas
  • Basement
    Full
  • Basement Development
    Unfinished
  • Floor Finish
    Laminate Flooring
  • Goods Included
    Dishwasher-Built-In
    Fan-Ceiling
    Garage Control
    Garage Opener
    Microwave Hood Fan
    Refrigerator
    Stacked Washer/Dryer
    Stove-Electric
  • Heating Type
    Forced Air-1
    Natural Gas
  • Basement
    Full
  • Basement Development
    Unfinished

Exterior

  • Lot/Exterior Features
    Picnic Area
    Playground Nearby
    Public Swimming Pool
    Public Transportation
    Schools
    Shopping Nearby
  • Roof
    Asphalt Shingles
  • Foundation
    Concrete Perimeter
  • Lot/Exterior Features
    Picnic Area, Playground Nearby, Public Swimming Pool, Public Transportation, Schools, Shopping Nearby
  • Roof
    Asphalt Shingles
  • Foundation
    Concrete Perimeter
  • Lot/Exterior Features
    Picnic Area
    Playground Nearby
    Public Swimming Pool
    Public Transportation
    Schools
    Shopping Nearby
  • Roof
    Asphalt Shingles
  • Foundation
    Concrete Perimeter

Additional Details

  • Property Class
    Single Family
  • Site Influences
    Picnic Area
    Playground Nearby
    Public Swimming Pool
    Public Transportation
    Schools
    Shopping Nearby
  • Road Access
    Paved
  • Last Updated
    9/4/2025 18:59
  • Property Class
    Single Family
  • Site Influences
    Picnic Area, Playground Nearby, Public Swimming Pool, Public Transportation, Schools, Shopping Nearby
  • Road Access
    Paved
  • Last Updated
    9/4/2025 18:59
  • Property Class
    Single Family
  • Site Influences
    Picnic Area
    Playground Nearby
    Public Swimming Pool
    Public Transportation
    Schools
    Shopping Nearby
  • Road Access
    Paved
  • Last Updated
    9/4/2025 18:59

$369,500

12268 131 Street

Schedule Tour
Contact Agent

$1683/month
Est. Monthly Payment
$
$
%
Learn More

Mortgage values are calculated by Redman Technologies Inc based on values provided in the REALTOR® Association of Edmonton listing data feed.